Interior ideas Customized for Indian home designs and cabinet design.
Visualize real time rendred images of your home before you create them.
Common Room
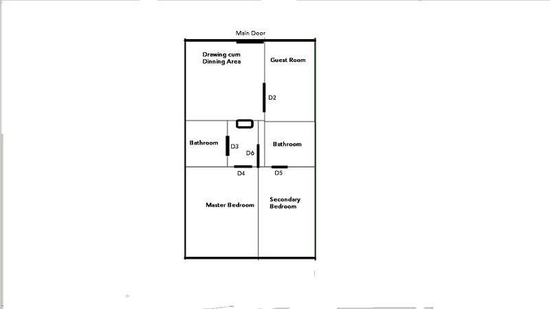
Layout
Common Room Central
Bedroom
Common Room
Kitchen and Bar
Common Room
Grey Mix Cabinets
White Grey Cabinets
Wooden Finish cabinets
Wooden Finish cabinetss
Carbonized Top Finish Cabinets
White Grey Cabinets
White Black Finish Cabinets
Previous
Next